ПН - ВС 10:00 - 19:00
Москва | Осенний бульвар | 8А, офис 502
Котельники | Дзержинское шоссе | вл. 7/7
Площадь
371 м2
Габариты
12,8х18,9м м
Материал
Проекты комбинированных домов

Проект двухэтажного дома с гаражом «Рига»

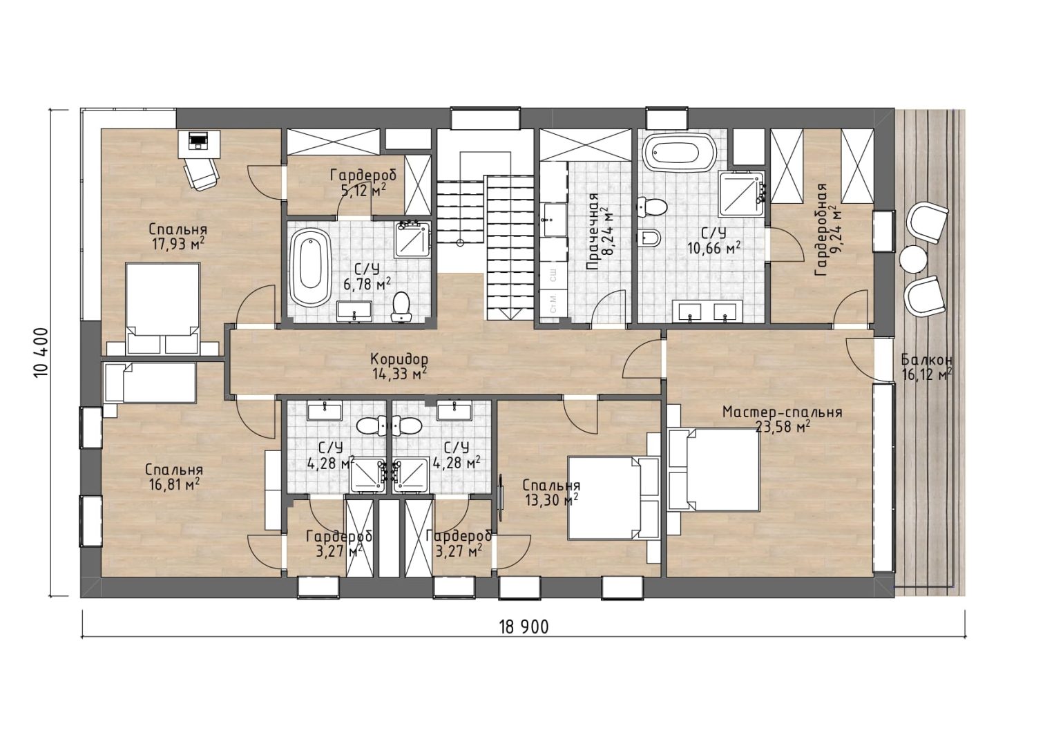
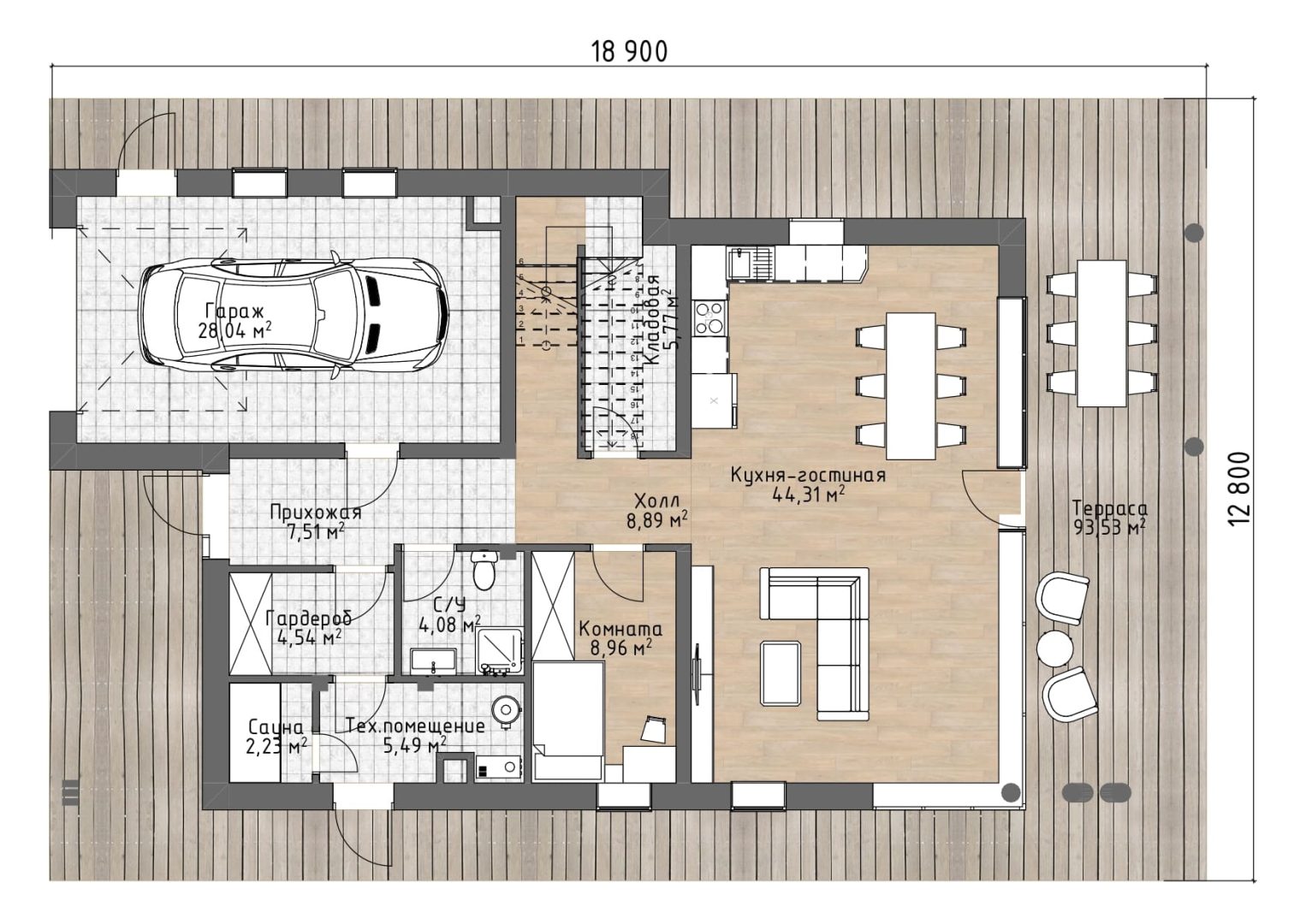
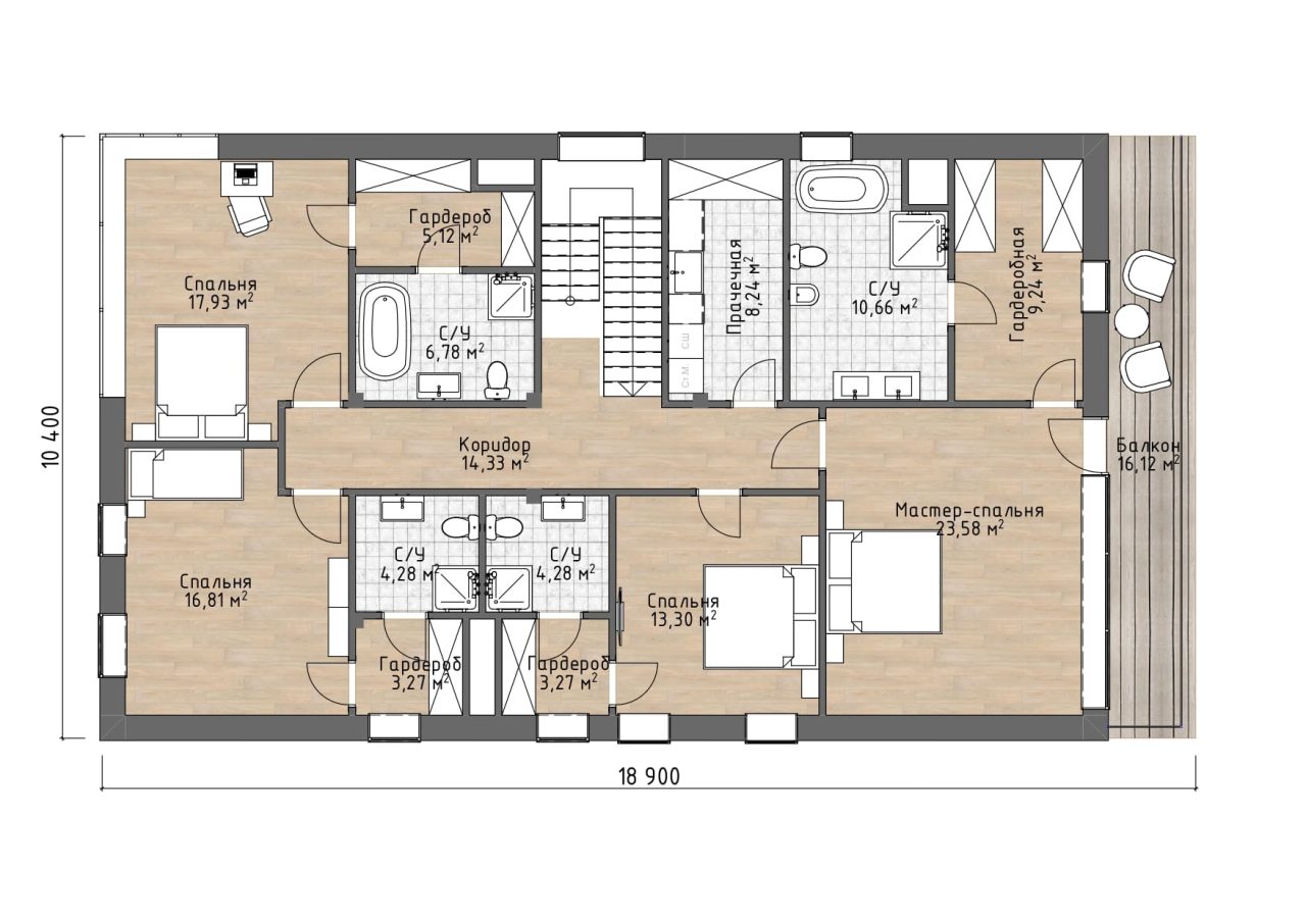
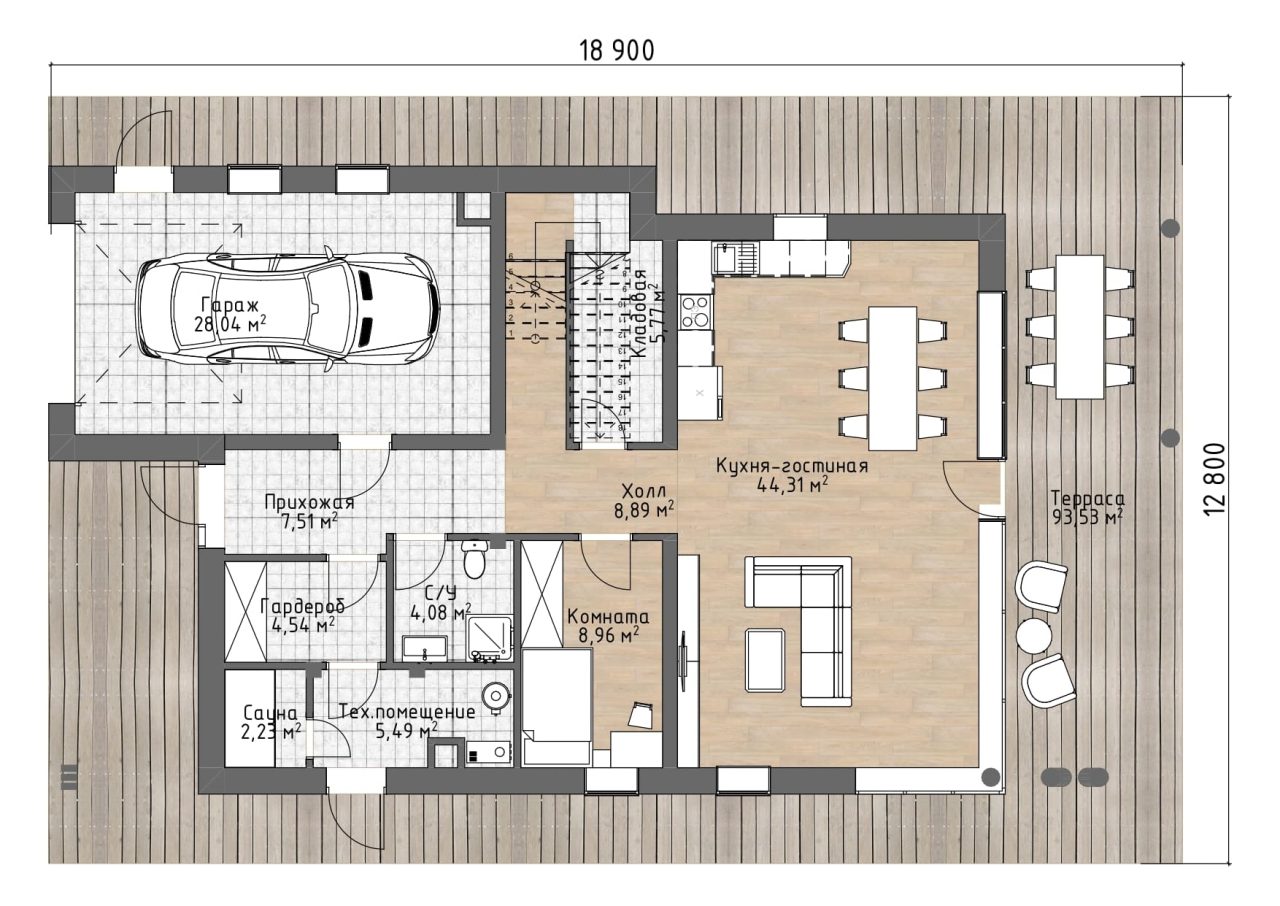
Двухэтажный дом из керамических блоков Porotherm на плитном фундаменте для проживания до 8-ми человек. За комфорт отвечает большая кухня-гостиная с зоной столовой, гостевая комната, сауна и много полезных помещений. 4 спальни с персональными санузлами и гардеробными. Полноценный второй этаж, встроенный гараж, опоясывающая терраса 94 кв.м.

Планировки дома «Рига»

В проекте: кухня-гостиная со столовой, 4 спальни с санузлами и гардеробными, гостевая комната, встроенный гараж, большая терраса, технические и вспомогательные помещения.

Хотите изменить
проект?

Расскажите свои идеи на встрече с архитектором — он внесет изменения в планировку и фасад.

Отделка под ключ дома по проекту "Рига"

Строительство дома по проекту "Рига"

Строительство дома из Porotherm в КП «Новорижский»

Строительство дома из Porotherm в КП «Новорижский»

Заливка основания бассейна

Заливка основания бассейна в КП «Новорижский»

Не нашли подходящий проект ?

Сделаем индивидуальный проект за 7 дней + вернем оплату за него при заказе Строительства

Некорректное Имя
Некорректный номер телефона
Некорректный ввод